

| 新型抗菌素多功能阀门的应用技术说明 发布时间:18-01-22 |
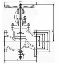
![]() 上海上兆阀门提供产的抗菌素多功能阀门是一种装置在制药行业、酒厂、生物企业、化工行业的储罐和管道上开关的阀门,通常用在储罐的进出口。第二代抗生素截止阀是每个制药、生物企业不可缺少的主力军,特别是发酵车间和提炼车间,它们是用来切断或沟通蒸汽、水、培养基、空气等流体,调节流体的流量,控制管道或容器内压力不可缺少的控制管道件。但普通阀门用于发酵生产中会经常发生渗(泄)漏,产生阀门常见的跑、冒、滴、漏现象,有的甚至还发生严重染菌、倒罐恶果,造成阀门应用企业生产菌源污染以及物料的大量浪费、减少产量、交货延期、成本增加等等。用现代科技、先进工艺研究开发能完全适应发酵工业要求的新产品,以满足发酵工业日益壮大燃眉之急。 1.抗菌素多功能阀门概述 发酵工业是我国最古老传统的产业,曾以出色酿造出茅台、五粮液技术而闻名全世界。随着时代的发展、科技的进步、人民生活水平的不断提高,发酵技术的应用领域不断得到扩展与延伸,现在在医药抗生素原料药、生物化工、生物农药、酶制剂及食品发酵生产过程中,又获得了新的发展天地。随之而来,医药药品的大批量、现代化、自动化工业生产,越来越多地暴露出我国生产设备与发酵生产工艺远远达不到发酵工艺流程要求,这些问题如不及时解决,必将严重制约该行业的进一步向前健康发展。 阀门是每个制药、生物企业不可缺少的主力军,特别是发酵车间和提炼车间,它们是用来切断或沟通蒸汽、水、培养基、空气等流体,调节流体的流量,控制管道或容器内压力不可缺少的控制管道件。但普通阀门用于发酵生产中会经常发生渗(泄)漏,产生阀门常见的跑、冒、滴、漏现象,有的甚至还发生严重染菌、倒罐恶果,造成阀门应用企业生产菌源污染以及物料的大量浪费、减少产量、交货延期、成本增加等等。用现代科技、先进工艺研究开发能完全适应发酵工业要求的新产品,以满足发酵工业日益壮大燃眉之急。 2.新型抗菌素多功能阀门设计 按照制药行业GMP标准要求,新型抗菌素多功能阀门不仅要有良好的密封性能,而且对密封材料上也有严格要求。从材质上能够适应较高温度、压力;在工作时介质对阀门密封材料的冲蚀、腐蚀和磨损不受影响,能保证阀门在使用期内不渗(泄)露。我们重点从阀门的内部结构设计入手,让每只阀门能够有效地阻止有害细菌在阀体内的衍生、繁殖,杜绝应用企业发生染菌、倒罐现象,不断提高应用单位的发酵收得率和企业的经济效益。 ![]() 3.阀门结构主要特点(创新点) 新型抗菌素多功能阀门(以下简称新型功能阀)主要由阀体、排气阀、密封圈、锥形阀瓣、下阀瓣、密封垫、压板、弹簧座、弹簧、上阀瓣、隔膜片、隔膜瓣、对开环、阀瓣螺盖、阀杆、阀盖、阀杆螺母、手轮、四氟垫片、等等组成(见总图)。但新型功能阀与一般阀门——截止阀对比大不一样,新型功能阀它由原来三种阀门分别操动,现改装为三合一操动,大大改变了原来的面貌,即省事又省钱,打破原来截止阀密封性能差,隔膜片耐温达不到要求,许多药厂靠高额进口隔膜片来维持作业。新型功能阀由节流阀、截止阀、隔膜阀三合一来代替原来抗生阀,而且在抗生阀基础上更上一层楼,它主要具备以下五大特点: (1)从图中可以明显地看出,阀体(序号1)其流道呈螺旋形,在流通过程中没有拐点、无任何死角,上有隔膜片隔离,无物料滞留,可以安全、卫生输送物料,便于清洗,因此不易发生染菌,而且,在底部开有排气孔,完全符合制药行业GMP标准要求。 (2)从总图中可以清楚的看出阀杆(序号18)中的螺纹部位,不管阀门如何开启或关闭,阀杆的螺纹部位均不会与阀门内任何工作介质直接接触,因此彻底避免了物料在阀杆螺纹处粘结和滞留的机会,因而阀杆与物料与世隔离。 (3)从密封圈与锥形面接触后再由截面接触起到双重关闭作用。接触面经激光熔覆强化处理,大大地提高了其表面硬度和耐磨性,延长了阀门的使用寿命。 (4)阀体材料按各企业不同工作介质、工艺(温度、压力)要求选择不同的耐腐蚀材料,如304、316L。 (5)该阀门设计合理、体积小、材质优良、无死角、密封性能好、防腐性能强、运转均匀、操作方便、经久耐磨、清洗方便、消毒彻底、降低能源、节省时间、装配方便、零部件通配等十几大优点。 ![]() 4.阀体设计 阀体是阀门中最重要的零件之一,它作为介质的流动通道和控制咽喉要道,要承受工作介质的压力、温度、冲蚀和腐蚀。阀门设计关键是阀体设计。阀体的结构虽然千变万化、各种各样、绚丽多彩,但两个截面明确的功能分工始终是一样的,阀体的纵截面确定流体的流向,阀体的横截面确定流体流过该截面流体的面积,根据流体力学原理,结合制药行业GMP标准要求,我们把阀门的纵截面设计成先有锥面后有截面,流量形成旋涡形,让物料迅速离开阀内。整个流程线路上没有拐点、无任何死角,使流动方向和通道形状不会发生滞留的现象以及达到流体无阻力之目的,阀体上密封圈接触面设计成喇叭形,让物料象喷泉一样喷出(序号3),有利于工作介质的流动。在阀体的底部增设了排气孔,即利于生产开始时管道中的污气排放,又利于生产过程中的消毒。对有些不使用该排气孔的企业,我们还专门为上述企业设计了不开排气孔阀体。 5.密封面的激光处理 阀门密封面长期在较高的温度和压力下承受工作介质的各种腐蚀和冲蚀,有的还承受密封面之间的檫伤磨损。采用高科技激光机(HGL-90型5KW)聚焦后的激光术来对阀体与阀瓣(序号3)密封层面进行单道激光扫描(工艺参数为:激光功率W=3kw,扫描速度U=8-20mm/s,光斑尺寸=φ5-φ10mm),控制好能量密度与扫描速度,可使熔层与基体不但牢固结合,互熔区小,而且对阀体热应力影响小。激光一次熔覆Co基或Ni基合金层厚度可达3mm,涂层表面光滑平整,可提高硬度20%-40%。测试与生产应用表明,经激光熔覆处理的阀门密封面在恶劣工况下具有良好的耐磨损、抗冲蚀气蚀、抗腐蚀疲劳和抗高温冲击疲劳等性能优点,提高了阀门使用的可靠性、安全性和延长使用寿命。 6.密封材料的选择 密封材料及其性能同阀门的质量密切相关,有些密封材料不适应这个流体工况,不利于密封,有些密封材料适应这个流体工况,有利于密封。我公司出厂的阀门产品结构不一,品种规格不同,密封件因企业的工况要求而选用不同的材料。我们配有耐热性、耐磨耗性、耐碱性、耐酸性,常用的四种工况条件,列成下表,按表配选。 |
|
||
|
||
|
||
|
||
|
||
|
||
|
||
|
||
|
||
|
||
|
||
|
||
|
||
|
||
|
||