

| 截止阀为什么要低进高出? 发布时间:18-03-08 | ||||||||||||||||||||||||||||||||||||||||||||||||||||||||||||||||||||||||||||||||||||||||||||||||||||||||||||||||||||||||||||||||||||||||||||||||||||||||||||||||||||||||||||||||||||||||||||||||||||||||||||||||||||||||||||||||||||||||||||||||||||||||||||||||||||||||||||||||||||||||||||||||||||||||||||||||||||||||||||||||||||||||||||||||||||||||||||||||||||||||||||||||||||||||||||||||||||||||||||||||||||||||||
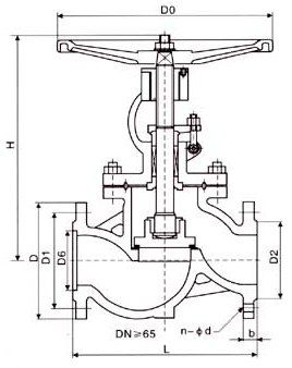
![]() 一般中低压的截止阀是低进高出,截断的时候填料不受力,减少泄漏的几率,可以延长使用寿命. 一般>DNA100的截止阀可以采用高进 低出; 大口径和高压状态下采用低进高出的话关闭阀门比较困难,二是因为如果再高压大口径状态下采用低进高出,阀杆长期受到水压力容易变形弯曲,影响阀门的安全性和密封性;三是选用高进低处的话对阀杆直径就可以小点,对于厂家和使用者来说也会节约点成本。 ![]() 截止阀外形及结构尺寸 1.6MPa
截止阀外形及结构尺寸 2.5MPa
截止阀外形及结构尺寸 4.0MPa
|
|
||
|
||
|
||
|
||
|
||
|
||
|
||
|
||
|
||
|
||
|
||
|
||
|
||
|
||
|
||