

| 截止阀和闸阀的区别选用 发布时间:18-03-29 |
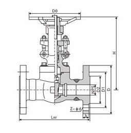
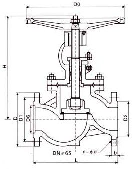
上兆阀门提供的闸阀、截止阀使用温度-200°C~+800℃,压力范围0.6Mpa~40Mpa,磅级150LB~1500LB,公称通径为DN15~1400mm,操作方式有手动、齿轮传动、电动、气动、液压传动、自动等驱动装置,广泛应用于石油、天然气、化工、电力、冶金、国防科技、矿山、船舶、食品、医药、供水、暖通、城建等重要领域。 ![]() ![]() 从结构上: 闸阀长度比截止阀短,高度比截止阀高,明杆闸阀安装需注意高度。这在安装空间有限的情况下选型要注意的。闸阀可依靠介质压力紧紧与密封面紧闭,从而达到不泄露的效果。当启闭时阀芯和阀座密封面始终接触并相互磨擦,因此密封面容易磨损,闸阀处于接近关闭时,管道前后压差很大,使密封面磨损更加严重。 从原理上: 截止阀和闸阀在原理上的区别为,截止阀是上升阀杆式的,手轮跟着阀杆一起做旋转和上升运动。闸阀是手轮旋转,阀杆做上升运动。流量各不相同,闸阀要求全开或者全关,而截止阀则不需要。截止阀有规定进口和出口方向;闸阀没有进出口方向要求。 解释:闸阀的通流体部分也是和直管是一样的,但在管内容设了个闸板,如果把这个闸板设法提起来这个门就全开了,而截止阀流体是在阀内转了180度的弯,通常流体是从阀的一侧进和入阀后转了个90度的角向上流,流到阀体的上部后又转了个90度流出去,就在流体在阀内向上流的出口处加了个盖,这个盖盖上门就关了,把这个盖打开阀就开了。 从流向上: 截止阀是低进高出,从外观看有明显的管道不在一相水平线上。闸阀流道在一个水平线上。闸阀的行程比截止阀的要大。 ![]() ![]() 截止阀和闸阀的区别 从结构上: 闸阀长度比截止阀短,高度比截止阀高,明杆闸阀安装需注意高度。这在安装空间有限的情况下选型要注意的。闸阀可依靠介质压力紧紧与密封面紧闭,从而达到不泄露的效果。当启闭时阀芯和阀座密封面始终接触并相互磨擦,因此密封面容易磨损,闸阀处于接近关闭时,管道前后压差很大,使密封面磨损更加严重。 从原理上: 截止阀和闸阀在原理上的区别为,截止阀是上升阀杆式的,手轮跟着阀杆一起做旋转和上升运动。闸阀是手轮旋转,阀杆做上升运动。流量各不相同,闸阀要求全开或者全关,而截止阀则不需要。截止阀有规定进口和出口方向;闸阀没有进出口方向要求。 截止阀原理图 解释:闸阀的通流体部分也是和直管是一样的,但在管内容设了个闸板,如果把这个闸板设法提起来这个门就全开了,而截止阀流体是在阀内转了180度的弯,通常流体是从阀的一侧进和入阀后转了个90度的角向上流,流到阀体的上部后又转了个90度流出去,就在流体在阀内向上流的出口处加了个盖,这个盖盖上门就关了,把这个盖打开阀就开了。 从流向上: 截止阀是低进高出,从外观看有明显的管道不在一相水平线上。闸阀流道在一个水平线上。闸阀的行程比截止阀的要大。 解释:从流阻的角度看在全开时闸阀流阻小,载止阀流阻大。普通闸阀的流动阻力系数约为0.08~0.12,开启关闭力小,介质可以两个方向流动。普通截止阀流动阻力是闸阀的3-5倍。启闭时需强制关闭才能达到密封,截止阀的阀芯是在完全关闭时才接触密封面,因而密封面的磨损很小,由于流动主力大需加执行器的截止阀应当注意转矩控制机构调整。 ![]() 从安装上: 1·闸阀的流向,从两方进入效果都一样。 2·截止阀在安装时有两种方式,一种是介质可以从阀芯的下方进入,优点是当阀门关闭时盘根不受压力,可以延长盘根的使用寿命,并可以在阀前管道承压的情况下,进行更换盘根的工作;缺点是阀门的驱动转矩较大,是上方流进的1倍左右,阀杆受的轴向力大,阀杆容易弯曲。所以此方式一般只适用于小口径截止阀(DN50以下),DN200以上的截止阀都选用介质从上方流入的方式。(电动截止阀一般是采用介质从上方进入的方式。)介质从上方进入方式的缺点正好与下方进入方式相反。 从密封面上: 截止阀的密封面是阀心的一个小梯形侧面(具体看阀心的形状),一旦阀心脱落,相当于阀门关闭(如果压差大,当然关不严,不过止逆效果还不错),闸阀是靠阀心闸板的侧面来密封,密封效果不如截止阀,阀心脱落也不会像截止阀那样相当于阀门关闭。 |
|
||
|
||
|
||
|
||
|
||
|
||
|
||
|
||
|
||
|
||
|
||
|
||
|
||
|
||
|
||