

| 水利控制阀就是利用管道自身的介质压力控制的阀门 发布时间:17-04-10 | ||||||||||||||||||||||||
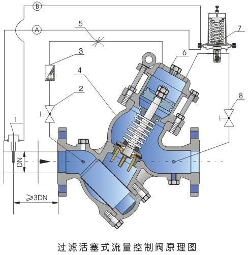
水利控制阀就是利用管道自身的介质压力控制的阀门 ![]() 水利控制阀就是利用管道自身的介质压力控制的阀门,水力控制阀由一个主阀及其附设的导管﹑导阀﹑针阀﹑球阀和压力表等组成。根据使用目的﹑功能及场所的不同可演变成??馗∏蚍Зp减压阀﹑缓闭止回阀﹑流量控制阀﹑泄压阀。 水利控制阀--选用要点: ( 1 )工程式中应用的水力控制阀是经过制造厂检验合格,各种标识齐全,技术资料符合要求的产品。 ( 2 )根据功能要求,选择阀门种类,再根据管道输送介质、温度、建筑标准和业主 要要求 等,确定阀门的阀体和密封部位的材质。常用的阀 体材料有铸铁 、铜铁、铜、塑料等。常用的密封面和衬里材料有铜合金、塑料、钢、硬质合金、橡胶等。阀 体材料应与管道材料相匹配。 ( 3 )阀门的公称压力有0.6、1.0、1.6、2.5和4.0MPa等不同级别,管道输送的介质,其工作压力应小于阀门的公称压力值。 ( 4 )工程中水利控制阀的设置应当有足够的空间,以便管理、操作、安装和维修,并应符合管路对阀门的要求。 ( 5 )管路采用法兰连接时,应采用法兰连接的水力控制阀;管路采用沟槽式连接时,应采用沟槽式连接的水利控制阀。 ( 6 )水利控制阀应设置在介质单向流动的管路上。 ( 7 )水利控制阀主阀体上的箭头方向必须与管路系统流向一致。 ( 8 )接水利控制阀管段不 应有气堵 、气阻现象。在管网最高位置 等存气段 应设置自动排气阀。 ( 9 )阀门水平安装时,阀盖、阀杆应朝上。垂直安装时,阀盖、阀杆应朝外。 ( 10 )阀门安装前应做强度和严密性试验。 ( 11 )阀门的强度和严密性试验应符合以下规定。 A、阀门的强度试验压力为公称压力的1.5倍; B、阀门的严密性试验压力为公称压力的1.5倍; C、试验压力在试验持续时间内应保持不变,且壳体填料及阀瓣密封面无渗漏; D、阀门试验持续时间按上表。 水利控制阀--原理构造: ??馗∏蚍вι柚迷谒鼗蛩涞慕艿郎希怂桨沧?,阀盖朝上。其控制导管与浮球设置应符合以下要求: 水利控制阀是以管道介质压力为动力,进行启闭、调节的阀门。它由一个主阀和附设的导管、针阀、球阀和压力表等组成、根据使用的目的、功能场所的不同,可演变成??馗∏?/div> 就可以使主阀获得对水位和水压及流量等进行单独和复合调节的功能。但主阀阀体类似截止阀,阀门全开时,其压力损失比其他阀门要大得多,且各个开度损失系数越是与全闭状 态接近,越是剧增,阀门口径越大就越显著。 YQ98001型过滤活塞式可调减压阀--原理: YQ98001型过滤活塞式可调减压阀由比托管传递压差信号给流导阀, 限流阀和针阀执行两路控控制. 来控制主阀活塞上腔的压力. 通过限流导阀调节摞栓的调节. 使阀后流量达到设定值; 活塞下腔有节流孔与下游相通. 可绶冲阀门的关闭, 主阀两端压力差是阀门启. 闭的驱动能源。主要用于空调. 给排水. 消防和各类工矿企业等供水管网口需要过滤而且对流量实现控制的场所和工况。能将上游压力降低至所设置的下游压力,无论怎样改变上游的压力和流量,其预先设定的下游压力均能够保持不变。 产品外观图
YQ98002型过滤活塞式安全泄压阀--原理: YQ98002型过滤活塞式安全泄压阀安装在高层建筑、消防给水系统以及其它给水系统的管道上,当给水管路中压力超过泄压阀设定压力时,泄压阀自动开启快速泄压,?;す芟甙踩?,也可作持压阀用, 保障主阀上游的供水压力。YQ98002型过滤活塞式安全泄压阀能准确保持不变的安全设定压力,一旦超压,泄压阀迅速打开,及时泄压。关闭平稳可靠,消除压力余波。利用水力自动操作,即可以作泄压阀用又可作持压阀用。作泄压阀用时,可维持供水路压力在设定的安全值之下;做持压阀用,可维持主阀上游水压在设定值之上,保持主阀上游供水压力。
YQ98003型过滤活塞式遥控浮球阀主要安装与水池或高架的进水口处,当水位达到设定的高度时,主阀由浮球导阀控制关闭进水口停止供水;当水位下降后,主 阀由浮球导阀控制打开进水口向水池注水,实现自动补水。液位控制精确,不受水压干扰;活塞式??馗∏蚍Э伤嫠氐母叨燃笆褂每占淙我馕恢冒沧埃褂檬倜?长。活塞式阀门性能可靠,强度高、动作平稳。关闭严密可靠,阀体采用流线型设计,流体阻力小,流量大;使用维护方便,主阀安装在水池外面,调试检验方便, 维修简单。YQ98003过滤活塞式??馗∏?/a>主要安装与水池或高架的进水口处,当水位达到设定的高度时,主阀由浮球导阀控制关闭进水口停止供水;当水位下降后,主阀由浮球导阀控制打开进水口向水池注水,实现自动补水。液位控制精确,不受水压干扰;活塞式??馗∏蚍Э伤嫠氐母叨燃笆褂每占淙我馕恢冒沧埃褂檬倜?。活塞式阀门性能可靠,强度高、动作平稳。关闭严密可靠,阀体采用流线型设计,流体阻力小,流量大;使用维护方便,主阀安装在水池外面,调试检验方便,维修简单。 YQ98004型过滤活塞式缓闭止回阀--工作原理: YQ98004型过滤活塞式缓闭止回阀安装在自来水厂及高层建筑给水系统,以及其它给水系统的水泵出口管道上,防止介质倒流,防止水锤及水击现象的产生。当水泵开启时,水通过导管进入中腔,推动活塞上升,主阀开关。当水泵停止工作时,活塞在回水压力下降,由于进口处针形阀比出口球阀流量小,因此活塞缓慢下降,主阀也随之缓慢关闭。一阀兼具电动阀,逆止阀和水锤消除器,可以有效地提高供水系统的安全可靠性。我公司生产YQ98004型过滤活塞式止回阀平稳可靠,消除压力余波。 YQ98005型过滤活塞式电动浮球阀--工作原理: YQ98005过滤活塞式电动浮球阀是在遥控浮球阀的基础上安装了??偷绱欧У缈刈爸?。使电动浮球阀具有双保险作用,即使在停电或电浮球失灵的情况下,也能控制水位,绝不允许水位超过警戒线或溢出,电动浮球阀可以设置启闭水位,解决主阀频繁启闭的缺点,是新一代的水位控制阀。主要安装于水池或高架水塔的进水口处,当水位达到设定的高度时,主阀由浮球导阀控制关闭进水口停止供水;当水位下降后,主阀由浮球导阀控制打开进水口向水池 注水,实现自动补水。液位控制精确,不受水压干扰;隔膜式??馗∏蚍Э伤嫠氐母叨燃笆褂每占淙我馕恢冒沧?、维护、调试、检查方便,使用寿命长。性能可 靠、强度高、动作平稳。关闭严密可靠,阀体采用流线型设计,流体阻力小,流量大;使用维护方便,主阀安装在水池外面,调试检验方便,维修简单。 YQ98006型过滤活塞式电磁控制阀--产品概述: YQ98006型过滤活塞式电磁控制阀由主阀、电磁导阀、针阀、球阀、微形过滤器组成水力控制接管系统;通过电磁导阀可以实现对阀门开启和关闭的遥控,当阀门从进口端给水时,水流流过针阀进入主阀上腔控制室,当电磁导阀打开时,控制室内的水经电磁导阀、球阀流出。球阀开度大于针阀开度,主阀上腔控制室内压力变低,主阀处于全开状态;当电磁导阀关闭时。 主阀上腔控制室的水不能流出,控制室升压,推动活塞关闭主阀;本产品利用导阀控制阀门的开启和关闭,反映准确快速,采用三向电磁阀,维护简单;安装于各类给水系统的管道上。 |
|
||
|
||
|
||
|
||
|
||
|
||
|
||
|
||
|
||
|
||
|
||
|
||
|
||
|
||
|
||