

| 大家快来上兆网站免费学习《最新阀门基础知识》 发布时间:17-05-08 | ||||||||||||||||||||||||||||||||||||||||||||||||||||||||||||||||||||||||||||||||||||||||||||||||||||||||||||||||||||||||||||||||||||||||||||||||||||||||||||||||||||||||||||||||||||||||||||||||||||||||||||||||||||||||||||||||||||||||||||||||||||||||||||||||||||||||||||||||||||||||||||||||||||||||||||||||||||||||||||||||||||||||||||||||||||||||||||||||||||||||||||||||||||||||||||||||||||||
大家快来上兆网站免费学习《最新阀门基础知识》 第一章 阀门的基础知识 第一节 概述 阀门是流体管路的控制装置,其基本功能是接通或切断管路介质的流通,改变介质的流通,改变介质的流动方向,调节介质的压力和流量,保护管路的设备的正常运行。 工业用的阀门的大量应用是在瓦特发明蒸汽机之后,近二三十年来,由于石油、化工、电站、冶金、船舶、核能、宇航等方面的需要,对阀门提出更高的要求,促使人们研究和生产高参数的阀门,其工作温度从超低温-269℃到高温1200℃,甚至高达3430℃,工作压力从超真空1.33x10-8Mpa(1x10-1㎜Hg)到超高压1460MPa,阀门通径从1mm到600mm,甚至达到9750mm,阀门的材料从铸铁,碳素钢发展到钛及钛合金,高强度耐腐蚀钢等,阀门的驱动方式从手动发展到电动、气动、液动、程控、数控、??氐?。 随着现代工业的不断发展,阀门需求量不断增长,一个现代化的石油化工装置就需要上万只各式各样的阀门,阀门使用量大??掌捣保捎谥圃?、使用选型、维修不当,发生跑、冒、滴、漏现象,由此引起火焰、爆炸、中毒、烫伤事故,或者造成产品质量低劣,能耗提高,设备腐蚀,物耗提高,环境污染,甚至造成停产等事故,已屡见不鲜,因此人们希望获得高质量的阀门,同时也要求提高阀门的使用,维修水平,这时对从事阀门操作人员,维修人员以及工程技术人员,提出新的要求,除了要精心设计、合理选用、正确操作阀门之外,还要及时维护、修理阀门,使阀门的“跑、冒、滴、漏”及各类事故降到最低限度。
第二节 阀门的分类
阀门的用途广泛,种类繁多,分类方法也比较多。总的可分两大类: 第一类自动阀门:依靠介质(液体、气体)本身的能力而自行动作的阀门。如止回阀、安全阀、调节阀、疏水阀、减压阀等。 第二类驱动阀门:借助手动、电动、液动、气动来操纵动作的阀门。如闸阀,截止阀、节流阀、蝶阀、球阀、旋塞阀等。 此外,阀门的分类还有以下几种方法: 一、按结构特征,根据关闭件相对于阀座移动的方向可分: 1. 截门形:关闭件沿着阀座中心移动,如图1—1所示。 2. 闸门形:关闭件沿着垂直阀座中心移动,如图1—2所示。 3. 旋塞和球形:关闭件是柱塞或球,围绕本身的中心线旋转,如图1—3所示。 4. 旋启形;关闭件围绕阀座外的轴旋转,如图1—4所示。 5. 碟形:关闭件的圆盘,围绕阀座内的轴旋转,如图1—5所示。 6. 滑阀形:关闭件在垂直于通道的方向滑动,如图1—6所示。
二、按用途,根据阀门的不同用途可分: 1. 开断用:用来接通或切断管路介质,如截止阀、闸阀、球阀、蝶阀等。 2. 止回用:用来防止介质倒流,如止回阀。 3. 调节用:用来调节介质的压力和流量,如调节阀、减压阀。 4. 分配用:用来改变介质流向、分配介质,如三通旋塞、分配阀、滑阀等。 5. 安全阀:在介质压力超过规定值时,用来排放多余的介质,保证管路系统及设 备安全,如安全阀、事故阀。 6. 他特殊用途:如疏水阀、放空阀、排污阀等。 ![]() ![]() ![]() 三、按驱动方式,根据不同的驱动方式可分: 1. 手动:借助手轮、手柄、杠杆或链轮等,有人力驱动,传动较大力矩时,装有 蜗轮、齿轮等减速装置。 2. 电动:借助电机或其他电气装置来驱动。 3. 液动:借助(水、油)来驱动。 4. 气动;借助压缩空气来驱动。 四、按压力,根据阀门的公称压力可分: 1. 真空阀:绝对压力<0.1Mpa即760mm汞柱高的阀门,通常用mm汞柱或mm 水柱表示压力。 2. 低压阀:公称压力PN≤1.6Mpa的阀门(包括PN≤1.6MPa的钢阀) 3. 中压阀:公称压力PN2.5—6.4MPa的阀门。 4. 高压阀:公称压力PN10.0—80.0MPa的阀门。 5. 超高压阀:公称压力PN≥100.0MPa的阀门。 五、按介质的温度分,根据阀门工作时的介质温度可分: 1. 普通阀门:适用于介质温度-40℃~425℃的阀门。 2. 高温阀门:适用于介质温度425℃~600℃的阀门。 3. 耐热阀门:适用于介质温度600℃以上的阀门。 4. 低温阀门:适用于介质温度-40℃~ -150℃的阀门。 5. 超低温阀门:适用于介质温度-150℃以下的阀门。 六、按公称通径分,根据阀门的公称通径可分: 1. 小口径阀门:公称通径DN<40mm的阀门。 2. 中口径阀门:公称通径DN50~300mm的阀门。 3. 大口径阀门:公称通径DN350~1200mm的阀门。 4. 特大口径阀门:公称通径DN≥1400mm的阀门。 七、按与管道连接方式分,根据阀门与管道连接方式可分; 1. 法兰连接阀门:阀体带有法兰,与管道采用法兰连接的阀门。 2. 螺纹连接阀门:阀体带有内螺纹或外螺纹,与管道采用螺纹连接的阀门。 3. 焊接连接阀门:阀体带有焊口,与管道采用焊接连接的阀门。 4. 夹箍连接阀门:阀体上带有夹口,与管道采用夹箍连接的阀门。 5. 卡套连接阀门:采用卡套与管道连接的阀门。 第三节 阀门的型号编制方法 一、阀门的型号 阀门的型号是用来表示阀类、驱动及连接形式、密封圈材料和公称压力等要素的。 由于阀门种类繁杂,为了制造和使用方便,国家对阀门产品型号的编制方法做了统一规定。阀门产品的型号是由七个单元组成,用来表明阀门类别、驱动种类、连接和结构形式、密封面或衬里材料、公称压力及阀体材料。 阀门型号的组成由七个单元顺序组成(见下表) ![]() 1.阀门的类型代号 表 1—1
2.传动方式代号用阿拉伯数字表示,按表1—2的规定 表 1—2
注:①手轮、手柄和扳手传动以及安全阀、减压阀、疏水阀省略本代号。 ②对于气动或液动:??接?K、7K表示;常闭式用6B、7B表示;气动带手动用6S表示。 防爆电动用“9B”表示。 3.连接形式代号用阿拉伯数字表示,按表1—3的规定 表 1—3
注:焊接包括对焊和承插焊 4.结构形式代号用阿拉伯数字表示1—4~13 表 1—4
表 1—5
表 1—6
表 1—7
表 1—8
表 1—9
表 1—10
表 1—11
注:杠杆式安全阀在类型代号前加“G”汉语拼音字母。 表 1—12
表 1—13
6. 阀座密封面或衬里材料代号用汉语拼音字母表示,按表1—14的规定。
注:由阀体直接加工的阀座密封面材料代号用“W”表示;当阀座和阀瓣(闸板)密封面材料不同时, 用低硬度材料代号表示(隔膜阀除外)。 8.阀体材料代号用汉语拼音字母表示,按表 1—15的规定 表 1—15
注:PN≤1.0MPa的灰铸铁阀体和PN≥2.5MPa的碳素钢阀体,省略本代号。
2.传动方式代号用阿拉伯数字表示,按表1—2的规定 表 1—2
注:①手轮、手柄和扳手传动以及安全阀、减压阀、疏水阀省略本代号。 ②对于气动或液动:??接?K、7K表示;常闭式用6B、7B表示;气动带手动用6S表示。 防爆电动用“9B”表示。 3.连接形式代号用阿拉伯数字表示,按表1—3的规定 表 1—3
注:焊接包括对焊和承插焊 4.结构形式代号用阿拉伯数字表示1—4~13 表 1—4
表 1—5
表 1—6
表 1—7
表 1—8
表 1—9
表 1—10
表 1—11
注:杠杆式安全阀在类型代号前加“G”汉语拼音字母。 表 1—12
表 1—13
6. 阀座密封面或衬里材料代号用汉语拼音字母表示,按表1—14的规定。
注:由阀体直接加工的阀座密封面材料代号用“W”表示;当阀座和阀瓣(闸板)密封面材 料不同时,用低硬度材料代号表示(隔膜阀除外)。 8.阀体材料代号用汉语拼音字母表示,按表 1—15的规定 表 1—15
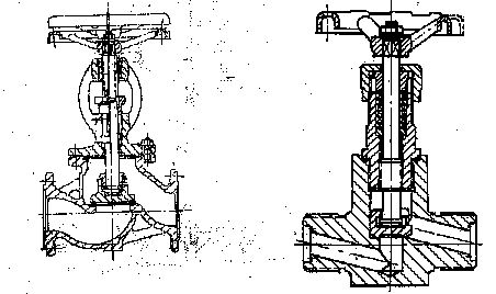
注:PN≤1.0MPa的灰铸铁阀体和PN≥2.5MPa的碳素钢阀体,省略本代号。 第二章 阀门的类型和用途 阀门类型繁多,本文只介绍常用阀门 第一节 闸 阀 闸阀是指关闭件(闸板)沿通路中心线的垂直方向移动的阀门。 闸阀在管路中主要作切断用。 闸阀是使用很广的一种阀门,一般口径DN≥50mm的切断装置都选用它,有时口径 很小的切断装置也选用闸阀,闸阀有以下优点: ①流体阻力小。 ②开闭所需外力较小。 ③介质的流向不受限制。 ④全开时,密封面受工作介质的冲蚀比截止阀小。 ⑤体形比较简单,铸造工艺性较好。 闸阀也有不足之处: ①外形尺寸和开启高度都较大。安装所需空间较大。 ②开闭过程中,密封面间有相对摩擦,容易引起擦伤现象。 ③闸阀一般都有两个密封面,给加工、研磨和维修增加一些困难。 一、闸阀的种类 1. 按闸板的构造可分 1)平行式闸阀:密封面与垂直中心线平行,即两个密封面互相平行的闸阀。如图2—12所示。 ![]() 在平行式闸阀中,以带推力楔块的结构最常为常见,既在两闸板中间有双面推力楔块,这种闸阀适用于低压中小口径(DN40—300mm)闸阀。也有在两闸板间带有弹簧的,弹簧能产生予紧力,有利于闸板的密封。 2)楔式闸阀:密封面与垂直中心线成某种角度,即两个密封面成楔形的闸阀如图2—13所示。 密封面的倾斜角度一般有2°52′,3°30′,5°, 8°, 10°等,角度的大小主要取决于介质温度的高低。一般工作温度愈高,所取角度应愈大,以减小温度变化时发生楔住的可能性。 在楔式闸阀中,又有单闸板,双闸板和弹性闸板之分。单闸板楔式闸阀,结构简单,使用可靠,但对密封面角度的精度要求较高,加工和维修较困难,温度变化时楔住的可能性很大。双闸板楔式闸阀在水和蒸气介质管路中使用较多。它的优点是:对密封面角度的精度要求较低,温度变化不易引起楔住的现象,密封面磨损时,可以加垫片补偿。但这种结构零件较多,在粘性介质中易粘结,影响密封。更主要是上、下挡板长期使用易产生锈蚀,闸板容易脱落。弹性闸板楔式闸阀,它具有单闸板楔式闸阀结构简单,使用可靠的优点,又能产生微量的弹性变形弥补密封面角度加工过程中产生的偏差,改善工艺性,现已被大量采用。 2. 按阀杆的构造闸阀又可分为 1) 明杆闸阀:阀杆螺母在阀盖或支架上,开闭闸板时,用旋转阀杆螺母来实现阀杆的升降。如图2—12所示。这种结构对阀杆的润滑有利,开闭程度明显,因此被广泛采用。 2) 暗杆闸阀:阀杆螺母在阀体内,与介质直接接触??照迨保眯Ц死词迪?。如图2—14所示。这种结构的优点是:闸阀的高度总保持不变,因此安装空间小,适用于大口径或对安装空间受限制的闸阀。此种结构要装有开闭指示器,以指示开闭程度。这种结构的缺点是:阀杆螺纹不仅无法润滑,而且直接接受介质侵蚀,容易损坏。 ![]() 二、闸阀的通径收缩 如果一个阀体内的通道直径不一样(往往都是阀座处的通径小于法兰连接处的通径),称为通径收缩。如图2—15所示。 通径收缩能使零件尺寸缩小,开、闭所需力相应减小,同时可扩大零部件的应用范围。但通径收缩后。流体阻力损失增大。 在某些部门的某些工作条件下(如石油部门的输油管线),不允许采用通径收缩的阀门。这一方面是为了减小管线的阻力损失,另一方面是为了避免通径收缩后给机械清扫管线造成障碍。 第二节 截止阀 截止阀是关闭件(阀瓣)沿阀座中心线移动的阀门。 截止阀在管路中主要作切断用。截止阀有以下优点: 1. 在开闭过程中密封面的摩擦力比闸阀小,耐磨。 2. 开启高度小。 3. 通常只有一个密封面,制造工艺好,便于维修。 截止阀使用较为普遍,但由于开闭力矩较大,结构长度较长,一般公称通径都限制在DN≤200mm以下。截止阀的流体阻力损失较大。因而限制了截止阀更广泛的使用。 截止阀的种类很多,根据阀杆上螺纹的位置可分: 一、上螺纹阀杆截止阀 截止阀阀杆的螺纹在阀体的外面。其优点是阀杆不受介质侵蚀,便于润滑,此种结构采用比较普遍。如图 2—8所示。 二、下螺纹阀杆截止阀 截止阀阀杆的螺纹在阀体内。这种结构阀杆螺纹与介质直接接触,易受侵蚀,并无法润滑。此种结构用于小口径和温度不高的地方。如图 2—9所示。 ![]() 根据截止阀的通道方向,又可分为;直通式截止阀,角式截止阀和三通式截止阀,后两种截止阀通常做改变介质流向和分配介质用。 第三节 节流阀 节流阀是指通过改变通道面积达到控制或调节介质流量与压力的阀门。 节流阀在管路中主要作节流使用。 最常见的节流阀是采用截止阀改变阀瓣形状后作节流用。但用改变截止阀或闸阀开启高度来作节流用是极不合适的,因为介质在节流状态下流速很高,必然会使密封面冲蚀磨损,失去切断密封作用。同样用节流阀作切断装置也是不合适的。 常见的节流阀如图 2 —10所示。 ![]() 节流阀的阀瓣有多种形状,常见的有: 1. 钩形阀瓣,常用于深冷装置中的膨胀阀。如图 2—11a所示。 2. 窗形阀瓣,适用于口径较大的节流阀如图2—11b所示。 3. 塞形阀瓣,适用于中小口径节流阀,使用较普遍。如图 2—11C所示。 ![]() 第四节 止回阀 止回阀是指依靠介质本身流动而自动开、闭阀瓣,用来防止介质倒流的阀门。 止回阀根据其结构可分 一、升降式止回阀:阀瓣沿着阀体垂直中心线滑动的止回阀,如图2—16所示。 ![]() 升降式止回阀只能安装在水平管道上,在高压小口径止回阀上阀瓣可采用圆球。 升降式止回阀的阀体形状与截止阀一样(可与截止阀通用),因此它的流体阻力系数较大。 二、旋启式止回阀:阀瓣围绕阀座外的销轴旋转的止回阀,如图2—17所示。 旋启式止回阀应用较为普遍。 三、碟式止回阀:阀瓣围绕阀座内的销轴旋转的止回阀。如图2—18所示。 碟式止回阀结构简单,只能安装在水平管道上,密封性较差。 四、管道式止回阀,阀瓣沿着阀体中心线滑动的阀门。如图2—19所示。 ![]() 管道式止回阀是新出现的一种阀门,它的体积小,重量较轻,加工工艺性好,是止回阀发展方向之一。但流体阻力系数比旋启式止回阀略大。 第五节 旋塞阀 旋塞阀是指关闭件(塞子)绕阀体中心线旋转来达到开启和关闭的一种阀门。 旋塞阀在管路中主要用作切断、分配和改变介质流动方向的。 旋塞阀是历史上最早被人们采用的阀件。由于结构简单,开闭迅速(塞子旋转四分之一圈就能完成开闭动作),操作方便,流体阻力小,至今仍被广泛使用。目前主要用于低压,小口径和介质温度不高的情况下。 旋塞阀的塞子和塞体是一个配合很好的圆锥体,其锥度一般为1:6和1:7。 一、紧定式旋塞阀 紧定式旋塞阀通常用于低压直通管道,密封性能完全取决于塞子和塞体之间的吻合度好坏,其密封面的压紧是依靠拧紧下部的螺母来实现的。一般用于PN≤0.6Mpa。如图2—1所示。 ![]() 图2-1 图2-2 二、填料式旋塞阀。 填料式旋塞阀是通过压紧填料来实现塞子和塞体密封的。由于有填料,因此密封性能较好。通常这种旋塞阀有填料压盖,塞子不用伸出阀体,因而减少了一个工作介质的泄漏途径。这种旋塞阀大量用于PN≤1Mpa的压力,如图2—2所示。 三、自封式旋塞阀 自封式旋塞阀是通过介质本身的压力来实现塞子和塞体之间的压紧密封的。塞子的小头向上伸出体外,介质通过进口处的小孔进入塞子大头,将塞子向上压紧,此种结构一般用于空气介质。如图2—3所示。 四、油封式旋塞阀 近年来旋塞阀的应用范围不断扩大,出现了带有强制润滑的油封式旋塞阀。由于强制润滑使塞子和塞体的密封面间形成一层油膜。这样密封性能更好,开闭省力,防止密封面受到损伤。如图2—4所示。 ![]() 图2-3 图2-4 第六节 球阀 球阀和旋塞阀是同属一个类型的阀门,只有它的关闭件是个球体,球体绕阀体中心线作旋转来达到开启、关闭的一种阀门。 球阀在管路中主要用来做切断、分配和改变介质的流动方向。 球阀是近年来被广泛采用的一种新型阀门,它具有以下优点: 1. 流体阻力小,其阻力系数与同长度的管段相等。 2. 结构简单、体积小、重量轻。 3. 紧密可靠,目前球阀的密封面材料广泛使用塑料、密封性好,在真空系统中也已广 泛使用。 4. 操作方便,开闭迅速,从全开到全关只要旋转90°,便于远距离的控制。 5. 维修方便,球阀结构简单,密封圈一般都是活动的,拆卸更换都比较方便。 6. 在全开或全闭时,球体和阀座的密封面与介质隔离,介质通过时,不会引起阀门密封面的侵蚀。 7. 适用范围广,通径从小到几毫米,大到几米,从高真空至高压力都可应用。 球阀已广泛应用于石油、化工、发电、造纸、原子能、航空、火箭等各部门,以及人们日常生活中。 球阀按结构形式可分: 一、浮动球球阀 球阀的球体是浮动的,在介质压力作用下,球体能产生一定的位移并紧压在出口端的密封面上,保证出口端密封。如图2—5所示。 ![]() 图 2-5 浮动球球阀的结构简单,密封性好,但球体承受工作介质的载荷全部传给了出口密封圈,因此要考虑密封圈材料能否经受得住球体介质的工作载荷。这种结构,广泛用于中低压球阀。 二、固定球球阀 球阀的球体是固定的,受压后不产生移动。固定球球阀都带有浮动阀座,受介质压力后,阀座产生移动,使密封圈紧压在球体上,以保证密封。通常在与球体的上、下轴上装有轴承,操作扭距小,适用于高压和大口径的阀门。如图2—6所示。 为了减少球阀的操作扭矩和增加密封的可靠程度,近年来又出现了油封球阀,既在密封面间压注特制的润滑油,以形成一层油膜,即增强了密封性,又减少了操作扭矩,更适用高压大口径的球阀。 三、弹性球球阀 球阀的球体是弹性的。球体和阀座密封圈都采用金属材料制造,密封比压很大,依靠介质本身的压力已达不到密封的要求,必须施加外力。这种阀门适用于高温高压介质。 如图2—7所示。 弹性球体是在球体内壁的下端开一条弹性槽,而获得弹性。当关闭通道时,用阀杆的楔形头使球体涨开与阀座压紧达到密封。在转动球体之前先松开楔形头,球体随之恢复原原形,使球体与阀座之间出现很小的间隙,可以减少密封面的摩擦和操作扭矩。 球阀按其通道位置可分为直通式,三通式和直角式。后两种球阀用于分配介质与改变介质的流向。 ![]() 图2-6 图2-7 第七节 蝶阀 蝶板在阀体内绕固定轴旋转的阀门,叫蝶阀。 1.作为密封型的蝶阀,是在合成橡胶出现以后,才给它带来了迅速的发展,因此它是一种新型的截流阀。在我国直至二十世纪八十年代,蝶阀主要作用于低压阀门,阀座采用合成橡胶,到九十年代,由于国外交流增多,硬密封〈金属密封〉蝶阀得以迅速发展。目前已有多家阀门厂能稳定地生产中压金属密封蝶阀,使蝶阀应运领域更为广泛。 2.蝶阀能输送和控制的介质有水、凝结水、循环水、污水、海水、空气、煤气、液态天然气、干燥粉末、泥浆、果浆及带悬浮物的混合物。 目前国产蝶阀参数如下: 公称压力:PN0.25——4.0MPa 公称统径:DN100——3000mm 工作温度:≤425℃ 3.蝶阀种类: 根据连接方式:法兰式、对夹式。 根据密封面材料;软密封、硬密封。 根据结构形式,蝶阀可分成以下类型: ——板式 蝶阀 ——斜板式 ——偏置板式 ——杠杆式 4.蝶阀的特点: (1)结构简单,外形尺寸小。由于结构紧凑,结构长度短,体积小,重量轻,适用于大口径的阀门。 (2)流体阻力小,全开时,阀座通道有效流通面积较大,因而流体阻力较小。 (3)启闭方便迅速,调节性能好,蝶板旋转90°既可完成启闭。通过改变蝶板的旋转角度可以分级控 制流量。 (4)启闭力矩较小,由于转轴两侧蝶板受介质作用基本相等,而产生转矩的方向相反,因而启闭较省力。 (5)低压密封性能好,密封面材料一般采用橡胶、塑料、故密封性能好。受密封圈材料的限制,蝶阀的使用压力和工作温度范围较小。但硬密封蝶阀的使用压力和工作温度范围,都有了很大的提高。 5.蝶阀的结构 蝶阀主要由阀体、蝶板、阀杆、密封圈和传动装置组成。蝶阀的结构见图1--21。 (1)阀体 阀体呈圆筒状,上下部分各有一个圆柱形凸台,用于安装阀杆。蝶阀与管道多采用法兰连接;如采用对夹连接,其结构长度最小。 (2)阀杆 阀杆是蝶板的转轴,轴端采用填料函密封结构,可防止介质外漏。阀杆上端与传动装置直接相接,以传递力矩。 (3)蝶板 蝶板是蝶阀的启闭件。根据蝶板在阀体中的安装方式,蝶阀可以分成以下几种形式: ①中心对称板。见图1--21(A),阀杆固定在蝶板的径向中心孔上,阀杆与蝶板均垂直安装 ![]() (a) (b) (c) (d) 图1-2 蝶阀结构图 a: 板式 b:斜板式 c:偏置板式 d:杠杆式 二、非密封形蝶阀:关闭时不能保证密封的蝶阀。在管路中只能做节流用,密封圈通常是用金属制成的。 |
||||||||||||||||||||||||||||||||||||||||||||||||||||||||||||||||||||||||||||||||||||||||||||||||||||||||||||||||||||||||||||||||||||||||||||||||||||||||||||||||||||||||||||||||||||||||||||||||||||||||||||||||||||||||||||||||||||||||||||||||||||||||||||||||||||||||||||||||||||||||||||||||||||||||||||||||||||||||||||||||||||||||||||||||||||||||||||||||||||||||||||||||||||||||||||||||||||||
|
||
|
||
|
||
|
||
|
||
|
||
|
||
|
||
|
||
|
||
|
||
|
||
|
||
|
||
|
||