F343CX蜗轮扇形盲板阀详细资料: 一、蜗轮扇形盲板阀产品特点及工作原理:
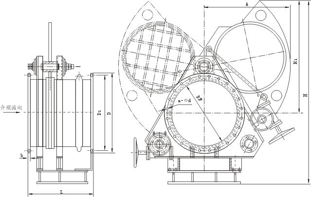
F343CX蜗轮扇形盲板阀又称蜗轮扇形眼镜阀,翻板阀,扇形阀,由左阀体、中阀体、右阀体、扇形盲板、丝杆螺母、不锈钢补偿器、两个蜗轮传动机构等组成。它是通过三根丝杆连成一体,并把三个阀体分别固定在底座上,构成一个刚性结构体。中阀体与右阀体用不锈钢膨胀管连接,左、中阀体分别用三根两端带左右梯形螺纹的丝杆连接,将三根丝杆同时作正向(或反向)旋转,则左、中两阀体得到压紧(或分离)。三根丝杆中上面一根丝杠中间装有盲板,盲板绕该轴心旋转。下面两根丝杆在同样的部位上安装有盲板的定位块,盲板旋转时可以防止盲板漂移,避免密封圈擦伤,其中一根丝杆上装有蜗轮传动机构,实现松开夹紧阀体的目的。
二、蜗轮扇形盲板阀主要性能参数:
公称压力MPa | 0.25 | 0.15 | 0.10 | 0.05 |
密封试验压力MPa | 0.275 | 0.165 | 0.11 | 0.055 |
强度试验压力MPa | 0.40 | 0.225 | 0.15 | 0.075 |
适用温度℃ | 丁腈橡胶 | 硅橡胶 | 氟橡胶 |
<120 | <250 | <300 |
适用介质 | 煤气等有毒、有害、易燃气体 |
采用标准 | 连接法兰尺寸符合JB/T81-94标准,检测方法符合GB/T13927-92标准 |
主要零部件材料 | 阀体、闸板为碳钢;连接轴、伸缩器为碳钢或不锈钢;密封圈为橡胶 |
三、蜗轮扇形盲板阀主要外形连接尺寸: 单位:mm
DN | D | D1 | b | n-φd | L |
300 | 440 | 395 | 22 | 12-φ22 | 500 |
350 | 490 | 445 | 22 | 12-φ22 | 500 |
400 | 540 | 495 | 22 | 16-φ22 | 600 |
450 | 595 | 550 | 24 | 16-φ22 | 600 |
500 | 645 | 600 | 24 | 16-φ22 | 600 |
600 | 755 | 705 | 24 | 20-φ26 | 600 |
700 | 860 | 810 | 26 | 24-φ26 | 800 |
800 | 975 | 920 | 26 | 24-φ30 | 800 |
900 | 1075 | 1020 | 28 | 24-φ30 | 800 |
1000 | 1175 | 1120 | 30 | 28-φ30 | 800 |
1100 | 1275 | 1220 | 30 | 28-φ30 | 800 |
1200 | 1375 | 1320 | 30 | 32-φ30 | 800 |
1300 | 1475 | 1420 | 32 | 32-φ30 | 800 |
1400 | 1575 | 1520 | 32 | 36-φ30 | 850 |
1500 | 1675 | 1620 | 32 | 36-φ30 | 850 |
1600 | 1790 | 1730 | 32 | 40-φ30 | 850 |
1800 | 1990 | 1930 | 32 | 44-φ30 | 1100 |
2000 | 2190 | 2130 | 32 | 46-φ30 | 1100 |

四、蜗轮扇形盲板阀订货须知:
1、①产品名称与型号②蜗轮扇形盲板阀口径③是否带附件以便我们的为您正确选型。
2、若已经由设计单位选定的蜗轮扇形盲板阀型号,请按蜗轮扇形盲板阀型号直接向我司销售部订购。
3、当使用的场合非常重要或环境比较复杂时,请您尽量提供设计图纸和详细参数。
上兆阀门其他产品:
闸 阀 截止阀 球 阀 蝶 阀 紧急切断阀 电磁阀 水力控制阀 止回阀 刀型闸阀 旋塞阀 过滤器 减压阀 疏水阀 隔膜阀 调节阀 阻火器 呼吸阀 燃气阀门 冶金阀门