

| 水力控制阀的选用|上兆阀门提供 发布时间:17-08-20 | ||||||||||||||||||||||||||||||||||||||||||||||||||||
水力控制阀的选用|上兆阀门提供 简单的介绍一下几种常用的水力控制阀: 一、100X??馗∏蚍?-概述 压力等级:PN10﹑PN16﹑PN25 隔膜式:DN20~450 活塞式:DN350~800
当管道从水端给水时,由于针阀、球阀、浮球阀是常开的,水通过微型过滤器、针阀、控制室、球阀、浮球阀进入水池,此时控制室不形成压力,主阀开启,水塔(池)供水。 当水塔(池)的水面上升至设定高度时,浮球浮起关闭浮球阀,控制室内水压升高,推动主阀关闭,供水停止。当水面下降时,浮球阀重新开启,控制室水压下降,主阀再次开启继续供水,保持液面的设定高度。 一、200X减压稳压阀--概述 200X减压稳压阀由主阀、导阀、针阀、球阀、微型过滤器和压力表组成水力控制接管系统。使用时,当调定出口压力后,能自动保持稳定出口压力。本产品利用导阀自力控制,不需要其它装置和能源,保养简便,压力控制准确度高,受进口压力和流量影响小,减压稳压可靠。广泛用于高层建筑、生活区等供水管网系统及城市供水工程。 二、200X减压稳压阀--工作原理 当阀门从进口端给水时,水流过针阀进入主阀控制室,出口压力通过导管作用到导阀上。当出口压力高于导阀弹簧设定值时,导阀关闭??刂剖彝V古潘耸敝鞣Э刂剖夷谘沽ι卟⒐乇罩鞣?,出口压力不再升高。 当阀门出口压力降到导阀弹簧设定压力时,导阀开启,控制室向下游排水。由于导阀系统排水量大于针阀的进水量,主阀控制室压力下降。进口压力使主阀开启。在稳定状态下,控制室进水、排水相同,主阀开度不变,出口压力稳定。 调节导阀弹簧即可设定出口压力。 一、300X缓闭止回阀--概述 300X缓闭止回阀由主阀、单向阀、针阀、球阀、微形过滤器和压力表组成水力控制接管系统。利用水力自动操作,可使主阀得到最佳的开启或关闭速度。防止水锺水击的产生,以达到缓闭消声的效果。利用水力自力控制,不需要其它装置和能源,保养简便,开启及缓闭平稳。广泛用于高层建筑、生活区等供水管网系统及城市供水工程。
二、300X缓闭止回阀--主要零件材料
三、300X缓闭止回阀--部件列表
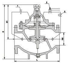
1、针阀2、主阀3、球阀4、压力表5、单向阀
一、400X流量控制阀--概述
400X流量控制阀由主阀、流量调节阀、针阀、导阀、球阀、微形过滤器和压力表组成水力控制接管系统。利用水力自动操作,控制和调节主阀开度,使通过主阀的流量保持不变。本产品利用水力自力控制,不需要其它装置和能源,保养简便,流量控制稳定。广泛用于高层建筑、生活区等供水管网系统及城市供水工程。
二、400X流量控制阀--工作原理
当阀门从进口端给水时,水流过针阀进入主阀控制室,并经过导阀、球阀流出主阀控制室到出口,此时主阀处于全开或浮动状态。调定主阀上部的流量调节阀,可为主阀设定一定开度。调节针阀开度和调节导阀弹簧压力,即可使主阀开度保持在设定开度,并在压力变化时导阀进行自动调节,保持流量不变。 一、500X泄压阀/持压阀--概述
500X泄压阀/持压阀由主阀、泄压/持压导阀针阀、球阀、微形过滤器和压力表组成水力控制接管系统。利用水力自动操作,即可以作泄压阀用又可作持压阀用。作泄压阀用时,可维持供水路压力在设定的安全值之下;做持压阀用,可维持主阀上游水压在设定值之上,保持主阀上游供水压力。
二、500X泄压阀/持压阀--工作原理
1、作泄压阀:当泄压/持压导阀调整为泄压状态时,水通过针阀、主阀控制室、球阀A、泄压/持压导阀、球阀B流向出口,此时主阀处于开启状态。当进口压力超过泄压/持压导阀设定的安全值时,泄压导阀会自动开启,通过球阀C放出部分水,使管路泄压。当压力恢复到安全值时,泄压阀自动关闭。作泄压阀时,各球阀???。
2、作持压阀:当泄压/持压导阀调整为持压状态时,只要主阀进口水压低于导阀设定值,导阀即关闭。主要控制室升压,主阀关闭。当主阀上游供水压力超过导阀设定压力时,持压导阀才能打开,控制室的水经球阀排至出口,控制室降压主阀开启,开始供水,即保持了上游水压。作持压阀用时,球阀C常闭或用丝堵换下。 一、600X水力电动控制阀--概述
600X水力电动控制阀由主阀、电磁导阀、针阀、球阀、微形过滤器和压力表组成水力控制接管系统。通过电磁导阀可以实现对阀门开启和关闭的??亍<幼案郊幼爸煤?,可控制开启和关闭的速度。本产品利用导阀控制阀门的开启和关闭,节省能源。可代替其它阀门大型电动装置。
二、600X水力电动控制阀--工作原理
当阀门从进口端给水时,水流流过针阀进入主阀控制室,当电磁导阀打开时,控制室内的水经电磁导阀、球阀流出。球阀开度大于针阀开度,主阀控制室内压力很低,主阀处于全开状态。
当电磁导阀关闭时,主阀控制室的水不能流出,控制室升压,推动膜片关闭主阀。 一、700X多功能水泵控制阀--概述
700X多功能水泵控制阀由主阀、电磁导阀、针阀、球阀、单向阀、行程开关、微形过滤器和压力表组成水力控制接管系统。水泵需停止工作时,先由进口压使主阀关闭90%后,水泵停止运转。剩余10%由回水关闭??煞乐顾赶窒蠓⑸1静防玫绱诺挤Э刂?,不需要其它装置和能源。节约能源,保养简便,停泵平稳。电磁阀可采用交流电220V或直流电24V。
二、700X多功能水泵控制阀--工作原理
当水泵工作阀门向下游供水时,电磁导阀全开,针阀调至适当开度,上游水经针阀、单向阀进入主阀控制室,经电磁导阀流出,此时主阀控制室的压力保持主阀处于合适的开度,保持下游正常供水。
当水泵停止工作时,电磁导阀先关闭,主阀控制室停止排水,控制室压力升高,主阀开始关闭。当关闭至90%时,主阀上部行程开关输出停泵信号,水泵停止运转。此时下游回水经单向阀进入主阀控制室,控制室压力升高,主阀被关闭 一、800X压差旁通阀--概述
800X压差旁通阀是一种用于空调系统供/回水之间以平衡压差的阀门。该阀门可提高系统的利用率,保持压差的精确互定直,并可最大限度地降低系统的噪音,以及过大压差对设备造成的损坏。800X压差旁通阀优越于其他平衡阀的地方在于它没有执行机构,完全介质自身的压力差来达到平衡系统的功能,节约能源及安装空间,是一种智能型阀门。
二、800X压差旁通阀--部件列表 1、针型阀 2、导阀 3、球阀
一、900X紧急关闭阀--概述
900X紧急关闭阀用于生活供水和消防供水并联供水系统中,正常情况供生活用水,当火灾发生时消防用水时,阀门自动关闭生活用水,确保足够的消防用水。当消防停止用水时压力减少,阀门自动恢复生活用水,该阀使系统无须另设专门的消防单独供水管网,大大地节省了工程建设成本和日常的用水量。该阀控制灵敏、安全可靠、调试简单、使用寿命长。 二、900X紧急关闭阀--主要技术参数
上兆阀门其他产品: 闸 阀 截止阀 球 阀 蝶 阀 紧急切断阀 电磁阀 水力控制阀 止回阀 刀型闸阀 旋塞阀 过滤器 减压阀 疏水阀 隔膜阀 调节阀 阻火器 呼吸阀 燃气阀门 冶金阀门 |
|
||
|
||
|
||
|
||
|
||
|
||
|
||
|
||
|
||
|
||
|
||
|
||
|
||
|
||
|
||