

|
||||||||||||||||||||||||||||||||||||||||||||||||||||||||||||||||||||||||
|
产品介绍 一、800X压差旁通阀--概述
800X压差旁通阀是一种用于空调系统供/回水之间以平衡压差的阀门。该阀门可提高系统的利用率,保持压差的精确互定直,并可最大限度地降低系统的噪音,以及过大压差对设备造成的损坏。800X压差旁通阀优越于其他平衡阀的地方在于它没有执行机构,完全介质自身的压力差来达到平衡系统的功能,节约能源及安装空间,是一种智能型阀门。 二、800X压差旁通阀--部件列表
1、针型阀 2、导阀 3、球阀
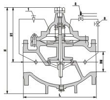
三、800X压差旁通阀--主要外形及连接尺寸
四、800X压差旁通阀--安装示意图
上兆阀门其他产品: 闸 阀 截止阀 球 阀 蝶 阀 紧急切断阀 电磁阀 水力控制阀 止回阀 刀型闸阀 旋塞阀 过滤器 减压阀 疏水阀 隔膜阀 调节阀 阻火器 呼吸阀 燃气阀门 冶金阀门 | ||||||||||||||||||||||||||||||||||||||||||||||||||||||||||||||||||||||||
相关产品 |
||||||||||||||||||||||||||||||||||||||||||||||||||||||||||||||||||||||||