100块钱上门服务电话号码,品茶qq群免费进群,全国高端经纪人联系方式,附近休闲一条龙全套

销售热线:021-66105556
您现在的位置:网站首页 -> 技术文章 ->
Z41W-63P不锈钢闸阀   发布时间:19-03-17


一,Z41W-63P不锈钢闸阀 - 概述  
 Z41W-63P不锈钢闸阀广泛应用于石油化工,火力发电厂等石油产品,水蒸气管道开启或切断管道中的介质。  
其次,Z41W-63P不锈钢闸阀- 功能  
 1。结构紧凑,设计合理,阀门刚性好,通道平滑,流量系数小。截止阀
 2,密封面采用不锈钢和硬质合金制造,使用寿命长。
 3,采用柔性石墨填料,密封可靠,操作轻便灵活  
 4,驱动方式为手动,气动,电动,齿轮传动 \\ n  
 5,结构形式为弹性楔形单门,刚性楔形单门双闸门  紧急切断阀
三,Z41W不锈钢法兰闸阀 - 实施标准  
设计规范:GB / T 12234   
结构长度:GB / T 12221   
连接法兰:JB / T 79   
测试和检验:JB / T 9092   
压力 - 温度:GB / T 9131   
产品标识:GB / T 12220   
四,Z41W-63P不锈钢闸阀 - 性能规格:
型号公称压力
(MPa)
实验压力工作温度(℃)适用介质
强度水(MPa)密封(水)空气(MPa)低压密封空气(MPa)
Z41H-16C
Z41W-16P(R)
1.62.41.80.6≤425硝酸类
Z41W-25P(R)2.53.82.80.6≤200醋酸类
Z41W-40P(R)4.06.04.40.6≤200硝酸类
Z41W-64P(R)6.49.67.00.6≤200醋酸类

 

五、Z41W不锈钢法兰闸阀--主要零件材质:

阀体/阀盖ZGICr18Ni9TiZG00Cr18Ni10ZG1Cr18Ni12M02TiZG00Cr17Ni14M02WCB
零件名称ZGICr18Ni9Tit系列ZG00Cr18Ni10系列ZG1Cr18Ni12M02Ti系列ZG00Cr17Ni14M02系列WCB系列
闸板ZGICr18Ni9TiZG00Cr18Ni10ZG1Cr18Ni12M02TiZG00Cr17Ni14M021Cr13
阀杆1Cr18Ni9Ti00Cr18Ni101Cr18Ni12M02Ti00Cr17Ni14M021Cr13
填料PTFE编织PTFE编织PTFE编织PTFE编织石墨
垫片304L+PTFE304L+PTFE316+PTFE316L+PTFE石墨
压盖ZGICr18Ni9TiZG00Cr18Ni10ZG1Cr18Ni12M02TiZG00Cr17Ni14M02系列WCB
填料压环1Cr18Ni9Ti00Cr18Ni101Cr18Ni12M02Ti00Cr17Ni14M021Cr13
螺栓1Cr17Ni21Cr17Ni21Cr17Ni21Cr17Ni235CrMoA
螺母1Cr18Ni9Ti1Cr18Ni9Ti1Cr18Ni9Ti1Cr18Ni9Ti45

 

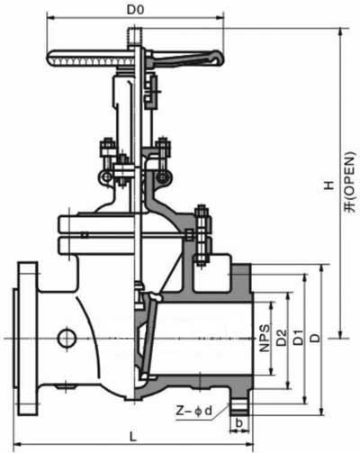
Z41W-63P不锈钢闸阀--主要连接尺寸:

尺寸DN1520253240506580100125150200250300350400
Lmm170190210230240250280320350400450550650750850950
Hmm175180210230350359373435500614674818970114512801450
Wmm120120140160200240280320360400400450560640800800
Z41W不锈钢法兰闸阀PN25~PN64外形尺寸图

 



· D343H-16P_硬密封不锈钢蝶阀特点 21-01-25
· SZQ641F46气动衬氟紧急切断阀 21-08-15
· 气源的压力对气动切断阀重要性 23-03-24
· 气动切断阀的电磁阀防爆(EXd)和本质安全防爆(EXi)的区别 22-04-05
· 蒸汽疏水阀工作技术原理及选型 14-02-11
· 《PQ947H型电动偏心半球阀说明书》 17-07-09
· 暗杆的结构|开杆式闸阀,暗杆之间的区别|开放式杆闸阀 18-04-27
· 断电自动复位关闭电动切断阀 22-08-23
· J941H电动截止阀技术参数|上兆阀门提供技术支持 17-06-02
· 紧急切断阀按切断方式 18-11-01
· QDQ421F型DN100_气动紧急切断阀 23-09-28
· 紧急切断阀有哪些特殊要求 19-06-14
· 减压阀的基础介绍 19-12-30
· 固定球阀力矩值参考表 21-01-23
· Q641F气动球阀的优点 21-08-13