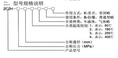
一、ZCZH高温高压电磁阀--概述:
ZCZH高温高压电磁阀用于各种中温、高温、常压、高压场合,适用于中高温热水、高温蒸汽、饱和蒸汽、过热蒸汽及导热油等管路的自动控制;广泛应用于窑炉设备、干燥设备、石油化工、生物制药、暖通空调、电镀涂装、橡塑机械、食品饮料、造纸、印染及电力矿业等行业,是自动化控制工程、项目改造及设备配套的首选产品。
①特殊场合可持续长时间通电,采用全金属密封,介质流体温度可达450℃
②不同的使用介质,采用针对性的密封, 更加提高电磁阀合理性
③采用新颖巧妙的阀芯结构及安装散热装置,使结构更加紧凑,重量是同类产品的三分之一
④采用不锈钢活塞结构,阀芯磨损可自动补偿,更加提高电磁阀的寿命和可靠性,可持续频繁工作
⑤介质流体最高压力可分别提供4.0Mpa;

三、ZCZH高温高压电磁阀--主要特点
(1)外漏堵绝,内漏易控,使用安全。内外泄漏是危及安全的要素。其它自控阀通常将阀杆伸出,由电动、气动、液动执行机构控制阀芯的转动或移动。这都要解决长期动作阀杆动密封的外泄漏难题;唯有电磁阀是用电磁力作用于密封在电动调节阀隔磁套管内的铁芯完成,不存在动密封,所以外漏易堵绝。电动阀力矩控制不易,容易产生内漏,甚至拉断阀杆头部;电磁阀的结构型式容易控制内泄漏,直至降为零。所以,电磁阀使用特别安全,尤其适用于腐蚀性、有毒或高低温的介质。
(2)系统简单,便接电脑,价格低谦。电磁阀本身结构简单,价格也低,比起调节阀等其它种类执行器易于安装维护。更显著的是所组成的自控系统简单得多,价格要低得多。由于电磁阀是开关信号控制,与工控计算机连接十分方便。在当今电脑普及,价格大幅下降的时代,电磁阀的优势就更加明显。
(3)动作快递,功率微小,外形轻巧。电磁阀响应时间可以短至几个毫秒,即使是先导式电磁阀也可以控制在几十毫秒内。由于自成回路,比之其它自控阀反应更灵敏。设计得当的电磁阀线圈功率消耗很低,属节能产品;还可做到只需触发动作,自动保持阀位,平时一点也不耗电。电磁阀外形尺寸小,既节省空间,又轻巧美观。
(4)调节精度受限,适用介质受限。电磁阀通常只有开关两种状态,阀芯只能处于两个极限位置,不能连续调节,(力图突破的新构思不少,但还都处于试验试用阶段)所以调节精度还受到一定限制。
电磁阀对介质洁净度有较高要求,含颗粒状的介质不能适用,如属杂质须先滤去。另外,粘稠状介质不能适用,而且,特定的产品适用的介质粘度范围相对较窄。
(5)型号多样,用途广泛。电磁阀虽有先天不足,优点仍十分突出,所以就设计成多种多样的产品,满足各种不同的需求,用途极为广泛。电磁阀技术的进步也都是围绕着如何克服先天不足,如何更好地发挥固有优势而展开。
1)直动式电磁阀:
原理:通电时,电磁线圈产生电磁力把关闭件从阀座上提起,阀门打开;断电时,电磁力消失,弹簧把关闭件压在阀座上,阀门关闭。
特点:在真空、负压、零压时能正常工作,但通径一般不超过25mm。
2)分步直动式电磁阀:
原理: 它是一种直动和先导式相结合的原理,当入口与出口没有压差时,通电后,电磁力直接把先导小阀和主阀关闭件依次向上提起,阀门打开。当入口与出口达到启动压差时,通电后,电磁力先导小阀,主阀下腔压力上升,上腔压力下降,从而利用压差把主阀向上推开;断电时,先导阀利用弹簧力或介质压力推动关闭件,向下移动,使阀门关闭。
特点: 在零压差或真空、高压时亦能可*动作,但功率较大,要求必须水平安装。
3)先导式电磁阀:
原理:通电时,电磁力把先导孔打开,上腔室压力迅速下降,在关闭件周围形成上低下高的压差,流体压力推动关闭件向上移动,阀门打开;断电时,弹簧力把先导孔关闭,入口压力通过旁通孔迅速腔室在关阀件周围形成下低上高的压差,流体压力推动关闭件向下移动,关闭阀门

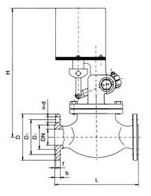
六、ZCZH高温高压电磁阀安装尺寸:

上兆阀门其他产品:
闸 阀 截止阀 球 阀 蝶 阀 紧急切断阀 电磁阀 水力控制阀 止回阀 刀型闸阀 旋塞阀 过滤器 减压阀 疏水阀 隔膜阀 调节阀 阻火器 呼吸阀 燃气阀门 冶金阀门