1、(K)TP41Y
阀套式排污阀是一种新型的节流、截止、放空产品,该阀门采用笼形迷军团节流,具有多级节流效果,节流效果明显、密封可靠、操作维护方便等特点。
2、阀门采用双重密封(硬、软质密封)使密封可靠、硬质合金封面可以更耐气流冲刷、耐磨损,双重密封能做到在高压气体介质条件下的零泄漏。阀门使用寿命长。
3、阀座的密封面采用锥度密封,有利于阀门自身清洗附在密封面上的脏物。
4、阀门的阀瓣上设置了平衡孔,活塞式密封,保证了启/闭全压差条件下稳定操作,开启轻便灵活、启闭扭矩小。
5、填料采用带自密封能力的v形填料结构,无需调节,开、关极为轻便。填料函处设有辅助密封油脂注入结构,使阀门填料密封性能可靠。
6、本阀门可以进行在线维修,管线可以带压状态下更换填料等一系列易损件。
7、本阀在阀门的底部设置了较大的排污孔,必要时要以打开,清理阀内污物。
8、
排污阀阀瓣的外园处高有o形密封圈,在启/闭时具有自清扫功能和密封,排污时具有节流降压功能。
1、常闭状态:阀瓣硬密封付压在阀座凸台上,形成一道硬质密封,同时嵌在阀瓣上的软质密
封与阀座端面紧压,形成第二道密封,双质密封结构保证了阀门的零泄漏,再由于阀瓣开设了平衡
孔,使阀门在关闭、开启时,阀瓣受到较小的作用力,也使阀门开启、关闭时具有较小的力矩。
2、节流排污状态:阀瓣密封付离开阀座,由于在阀瓣处设有了平衡孔,使阀门开启极为轻
便。阀门开启后,管道中的介质、杂质一同流过阀套、阀座,同时实现节流与排污。阀瓣、阀座密
封面利用套垫斜角改变介质流向,具有自清扫功能,使密封付不夹带杂质。
3、关闭状态:管道中介质排放后关闭阀门,介质从套垫斜角处进入阀座通道,流阻系数增加,
流速加快,斜角改变介质流向方向,产生涡流,阀座端面介质径向力增加,实现阀座启封的吹扫。
阀瓣密封付接近阀座时,套垫与阀座通道的配合间隙阻止较大颗粒介质流向密封付,加之流速的进
一步增大和介质横向力的吹扫,阀门关闭时密封付杂质已完全清扫干净,保证了阀门排污后的密封
性能,从而进一步保证排污后密封性也能达到无泄漏。因此大大提高了能力并延长了使用寿命
性能规范:
压力等级 | 常温试验压力mpa | 适用温度℃ | 适用介质 |
壳体 | 密封 | 上密封 | 气体低压密封 | g型 | d型 d | 普通 | 抗硫型 | 普通 |
公称压力 mpa | 1.6 | 2.4 | 1.76 | 1.76 | 0.6 | -29~250 | -45~121 | -29~121 | 含h2s和 co2>500mg/m3 的介质 | 石油、天然气、 水等 |
2.5 | 3.8 | 2.75 | 2.75 | 0.6 |
4.0 | 6.0 | 4.4 | 4.4 | 0.6 |
6.4 | 9.6 | 7.04 | 7.04 | 0.6 |
10.0 | 15.0 | 11.0 | 11.0 | 0.6 |
16.0 | 24.0 | 17.6 | 17.6 | 0.6 |
制造标准:
设计标准 | gb/t 12235 |
结构长度 | 法兰连接 | gb/t 12221 |
对焊连接 | gb/t 15188.1 |
连接法兰 | jb/t79gb/t9113 |
对焊端 | gb/t 12224 |
试验和检验 | jb/t9092 |
序号 | 零件名称 | 材质 |
1 | 双头螺柱 | 35crmo |
2 | 螺母 | 35 |
3 | 底盖 | 20 |
4 | o形圈 | nbr |
5 | 阀体 | wcb |
6 | 排污套 | 1cr18ni9 |
7 | 虑网 | 1cr18ni9 |
8 | 阀座 | 20+ni45 |
9 | 内六角圆柱头螺钉 | 35 |
10 | 压板 | 20 |
11 | 密封圈 | nbr |
12 | 芯套 | 20+enp |
13 | 阀瓣 | 2cr13+ni60 |
14 | 钢球 | gcr15 |
15 | 阀杆 | 2cr13 |
16 | 阀盖 | 25 |
17 | 下填料垫 | 1cr13 |
18 | 中填料 | ptfe |
19 | 中填料 | nbr |
20 | 上填料垫 | 1cr13 |
21 | 隔环 | ptfe |
22 | 填料压盖 | 45 |
23 | 支架 | wcb |
24 | 阀杆螺母 | zqal9-4 |
25 | 手轮 | 20 |
26 | 螺母 | 35 |
27 | 注脂阀 | 25+镀锌(组件) |
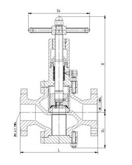
1.6-4.0MPa主要外形连接尺寸、重量及产品结构图:
| DN(mm) | 尺寸mm | 重量(kg) |
L | H | H1 | D0 |
1.6 | 25 | 216 | 243 | 86 | 180 | 18 |
40 | 230 | 265 | 108 | 250 | 25 |
50 | 230 | 346 | 115 | 250 | 28 |
80 | 310 | 409 | 146 | 300 | 53 |
100 | 350 | 433 | 163 | 300 | 62 |
150 | 480 | 521 | 202 | 350 | 128 |
200 | 600 | 594 | 292 | 350 | 168 |
250 | 730 | 621 | 355 | 400 | 289 |
2.5 | 25 | 216 | 243 | 86 | 180 | 18 |
40 | 230 | 265 | 108 | 250 | 25 |
50 | 230 | 346 | 115 | 250 | 28 |
80 | 310 | 409 | 146 | 300 | 57 |
100 | 350 | 433 | 163 | 300 | 69 |
150 | 480 | 521 | 202 | 350 | 145 |
200 | 600 | 594 | 292 | 350 | 188 |
250 | 730 | 621 | 355 | 400 | 315 |
4.0 | 25 | 216 | 243 | 86 | 180 | 21 |
40 | 230 | 265 | 108 | 250 | 31 |
50 | 230 | 346 | 115 | 250 | 35 |
80 | 310 | 409 | 146 | 300 | 70 |
100 | 350 | 433 | 163 | 300 | 85 |
150 | 480 | 521 | 202 | 350 | 172 |
200 | 600 | 594 | 292 | 350 | 219 |
250 | 730 | 621 | 355 | 400 | 378 |
MPa | DN(mm) | 尺寸mm | 重量(kg) |
L | H | H1 | D0 |
6.4 | 25 | 216 | 243 | 86 | 180 | 21 |
40 | 230 | 265 | 108 | 250 | 37 |
50 | 230 | 346 | 115 | 250 | 42 |
80 | 310 | 409 | 146 | 300 | 84 |
100 | 350 | 433 | 163 | 300 | 100 |
150 | 480 | 521 | 202 | 350 | 208 |
200 | 600 | 594 | 292 | 350 | 265 |
250 | 730 | 621 | 355 | 400 | 452 |
10.0 | 25 | 230 | 245 | 78 | 200 | 30 |
40 | 260 | 265 | 106 | 250 | 44 |
50 | 300 | 287 | 110 | 300 | 58 |
80 | 380 | 409 | 152 | 350 | 98 |
100 | 430 | 433 | 169 | 350 | 125 |
150 | 559 | 531 | 225 | 400 | 245 |
200 | 660 | 709 | 321 | 500 | 316 |
250 | 787 | 817 | 399 | 500 | 540 |
16.0 | 25 | 230 | 215 | 78 | 200 | 36 |
40 | 260 | 265 | 105 | 250 | 54 |
50 | 300 | 237 | 110 | 300 | 69 |
80 | 390 | 414 | 155 | 350 | 120 |
100 | 450 | 440 | 175 | 350 | 150 |