一、BQ41F缩径保温球阀--概述
BQ41F 缩径保温球阀具有保温、保冷特性。按GB设计制造法兰连接按79-94标准制造用于石油、化工、冶金、制药行业。BQ41F缩径保温球阀由于采用了蒸气夹套保温。故即使外界温度降到零度以下,该阀仍操作灵活保证输油管道能断开,其优点是一般控制阀门所没有的。它是重油输送管道理想的控制阀门。根据用户需要夹套注入蒸气、导热油、冷却水、冷气等。使用整个阀门长温或降温达到所需要的温度。能防止介质结晶。BQ41F缩径保温球阀产品具有良好的保温保冷特性,具阀门的痛径与管径一致,同时又能有效降管路中介质热量损失。主要用于石油、化工、冶金、制药、食品等各类系统中,以输送还常温下会凝固的高粘度介质。
二、BQ41F缩径保温球阀--主要零部件材料
| 序号 | 零件名称 | 材质 | 序号 | 零件名称 | 材质 |
| GB | ASTM | GB | ASTM |
| 1 | 夹套 | 25 | A105 | 5 | 球体 | | |
| 2 | 阀座 | WCB | A216-WCB | 6 | 阀杆 | 1Cr13 | A247-410 |
| 3 | 阀体 | 1Cr18Ni9Ti | SS304 | 7 | 填料 | 柔性石墨 |
| 4 | 密封圈 | PTFE、对位聚苯 | 8 | 填料压盖 | WCB | A216-WCB |
注:缩径保温球阀主要零部件及密封面材质可根据实际工况条件或用户特殊要求设计先用。
三、BQ41F缩径保温球阀--主要技术规范
| 设计标准 | ASME B 16.34 GB/T 12224 |
| 结构长度 | ASME B 16.10 GB/T 12221 |
| 连接法兰 | ASME B 16.34 JB/T 79 |
| 驱动方式 | 手动、电动、气动 |
| 试验和检验 | JB/T9092API598 |
| 适用介质 | 重油、胶类等易凝固介质 |
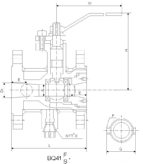
四、I型主要连接尺寸
| 公称通径DN | L | D | D1 | D2 | B | F | Z-Φd | 2-G |
| 15 | 130 | 95 | 65 | 45 | 14 | 2 | 4-Φ14 | 3/8 |
| 20 | 150 | 105 | 75 | 55 | 14 | 2 | 4-Φ14 | 3/8 |
| 25 | 160 | 115 | 85 | 65 | 14 | 2 | 4-Φ14 | 3/8 |
| 32 | 165 | 135 | 100 | 78 | 16 | 2 | 4-Φ18 | 1/2 |
| 40 | 180 | 145 | 110 | 85 | 16 | 3 | 4-Φ18 | 1/2 |
| 50 | 200 | 160 | 125 | 100 | 16 | 3 | 4-Φ18 | 1/2 |
| 65 | 220 | 180 | 145 | 120 | 18 | 3 | 4-Φ18 | 1/2 |
| 80 | 250 | 195 | 160 | 135 | 20 | 3 | 4-Φ18 | 1/2 |
| 100 | 280 | 215 | 180 | 155 | 20 | 3 | 4-Φ18 | 1/2 |
| 125 | 320 | 280 | 240 | 210 | 22 | 3 | 4-Φ23 | 1/2 |
| 150 | 360 | 335 | 295 | 265 | 26 | 3 | 4-Φ23 | 1/2 |
五、II型主要连接尺寸
| 公称通径DN | L | D | D1 | D2 | B | F | Z-Φd | 2-G |
| 15 | 130 | 95 | 65 | 45 | 14 | 2 | 4-Φ14 | 3/8 |
| 20 | 150 | 105 | 75 | 55 | 14 | 2 | 4-Φ14 | 3/8 |
| 25 | 160 | 115 | 85 | 65 | 14 | 2 | 4-Φ14 | 3/8 |
| 32 | 165 | 135 | 100 | 78 | 16 | 2 | 4-Φ18 | 1/2 |
| 40 | 180 | 145 | 110 | 85 | 16 | 3 | 4-Φ18 | 1/2 |
| 50 | 200 | 160 | 125 | 100 | 16 | 3 | 4-Φ18 | 1/2 |
| 65 | 220 | 180 | 145 | 120 | 18 | 3 | 4-Φ18 | 1/2 |
| 80 | 250 | 195 | 160 | 135 | 20 | 3 | 4-Φ18 | 1/2 |
| 100 | 280 | 215 | 180 | 155 | 20 | 3 | 4-Φ18 | 1/2 |
| 125 | 320 | 280 | 240 | 210 | 22 | 3 | 4-Φ23 | 1/2 |
| 150 | 360 | 335 | 295 | 265 | 26 | 3 | 4-Φ23 | 1/2 |

上兆阀门其他产品:
闸 阀 截止阀 球 阀 蝶 阀 紧急切断阀 电磁阀 水力控制阀 止回阀 刀型闸阀 旋塞阀 过滤器 减压阀 疏水阀 隔膜阀 调节阀 阻火器 呼吸阀 燃气阀门 冶金阀门