

|
||||||||||||||||||||||||||||||||||||||||||||||||||||||||||||||||||||||||||||||||||||||||||||||||||||||||||||||||||||||||||||||||||||||||||||||||||
|
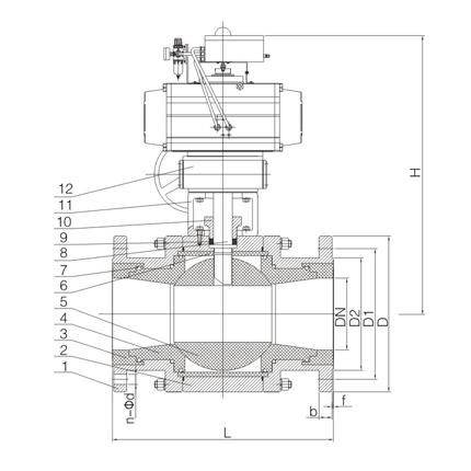
产品介绍 气动陶瓷球阀--产品概述: Q641TC-16C 气动陶瓷球阀的阀体内部与介质接触部分(包括球体及阀体内衬)均采购高性能结构陶瓷材料,在火电厂脱硫脱硝、气力除灰、化工冶金、多晶硅硅粉气力输送等各种高腐蚀、高磨损、高冲压等。 气动陶瓷球阀--主要性能特点: 1. 阀门壳体采用碳钢或不锈钢材料,采用三段式结构设计,结构简单可靠,并能?;つ诓刻沾刹考馐芩鸹?。 2. 阀门球体及与介质接触的所有部位均内衬结构陶瓷材料,高纯氧化铝陶瓷和氧化锆陶瓷具有耐腐蚀性能,在除氢酸外的绝大部分强腐蚀酸碱介质中都不会腐蚀,作为耐腐蚀阀门,在众多耐腐蚀领域 3. 高纯氧化铝陶瓷和增韧氧化锆陶瓷除了具有耐腐蚀性能外,同样具有硬度(洛氏硬度HRA>88,仅次于金刚石等少数几种材质), 因此在各种含有固体颗粒的高冲刷高磨损工况中,可以长期使用而不会被磨损。 气动陶瓷球阀--应用领域: 1. 火电厂烟气脱硫脱硝石灰水、石灰石浆液、石膏浆液 2. 火电厂气力除灰 3. 多晶硅硅粉气力输送 4. 冶金粉末气力输送 5. 湿法冶金硫酸与矿砂混合物 6. 其他高腐蚀、高磨损、高冲刷工况 气动陶瓷球阀--主要零部件材料: 主体:碳钢(A105)、不锈钢(F304,F316,F304L,F316L)等 阀球:结构陶瓷 阀座:结构陶瓷 填料:柔性石墨,PTFE 公称通径:DN15-DN300(1/2"-12") 公称压力:PN6-PN100 适用温度:-29~+230℃ 操作方式:手柄,蜗轮,气动,电动,电液联动等 适用介质:各种高腐蚀、高磨损、高冲刷介质 气动陶瓷球阀--主要外形和连接尺寸: ![]()
| ||||||||||||||||||||||||||||||||||||||||||||||||||||||||||||||||||||||||||||||||||||||||||||||||||||||||||||||||||||||||||||||||||||||||||||||||||
相关产品 |
||||||||||||||||||||||||||||||||||||||||||||||||||||||||||||||||||||||||||||||||||||||||||||||||||||||||||||||||||||||||||||||||||||||||||||||||||