

|
|||||||||||||||||||||||||||||
|
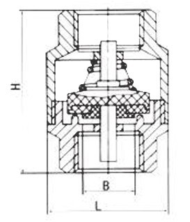
产品介绍 一、H12W不锈钢内螺纹直通止回阀--概述
H12W不锈钢内螺纹直通止回阀精度高,外观美,造型小,带有弹簧装置,垂直与水平安装均可等特点.主要适应管道系统中防止介质倒流使用.
二、H12W不锈钢内螺纹直通止回阀--主要技术参数
工作压力H12型为6-16Mpa H13型为4-32Mpa
三、性能参数与主要尺寸
上兆阀门其他产品: 闸 阀 截止阀 球 阀 蝶 阀 紧急切断阀 电磁阀 水力控制阀 止回阀 刀型闸阀 旋塞阀 过滤器 减压阀 疏水阀 隔膜阀 调节阀 阻火器 呼吸阀 燃气阀门 冶金阀门 | |||||||||||||||||||||||||||||
相关产品 |
|||||||||||||||||||||||||||||